Freie Gewerbefläche in Leinfelden-Echterdingen
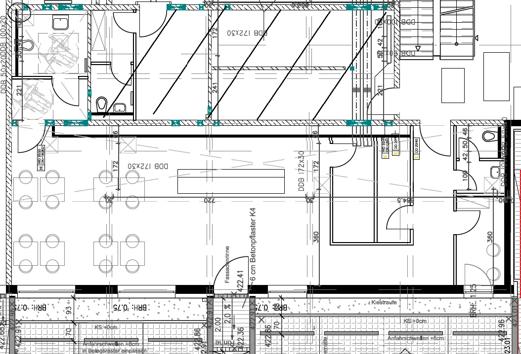
Modernes Objekt mit separaten 2 Toiletten und Waschtischen. Ein Zugang von außen mit 2 Stufen oder Nebeneingang durch das Haus Barrierefrei.
Eine 2-stöckige Tiefgarage ist vorhanden. Mehrere Stellplätze in der TG können für je 75,00 € pro Monat angemietet werden
Energieausweis
- A+
- A
- B
- C
- D
- E
- F
- G
- H
- 0
- 25
- 50
- 75
- 100
- 125
- 150
- 175
- 200
- 225
- >250
